The North Marlow Bungalow Refinement

Smart Expansion & Future-Proofing for Modern Living

Nestled in a quiet corner of North Marlow, this compact bungalow required a thoughtful intervention to unlock its full potential. The project focused on creating dedicated space for entertaining while laying the groundwork for the home to grow with its owners.

A New Heart for the Home

The primary addition is a light-filled dining room extension. By moving the dining area into its own dedicated wing, we freed up the original floor plan, allowing for a more fluid and spacious lounge and kitchen arrangement. Large-format windows ensure the space is bathed in natural light throughout the day.

Designed for Tomorrow: Loft Potential

What sets this project apart is the strategic design. While the current footprint remains on a single level, the application was made with a future loft conversion in mind.

We have provided the homeowners with the potential to add significant value and bedroom space in the years to come.

Front Elevation

Front Elevation

South Elevation

South Elevation

East Elevation

East Elevation

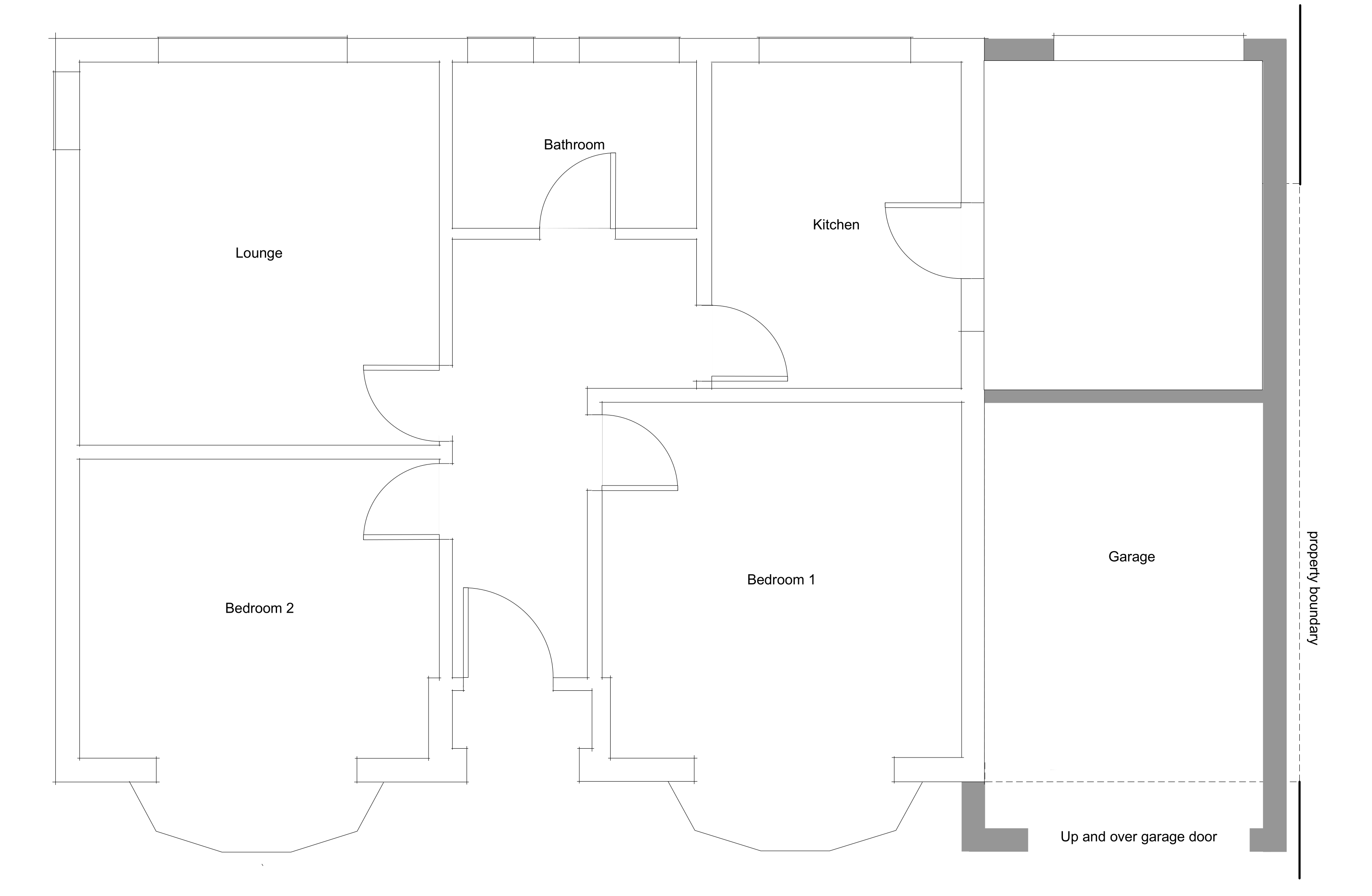
Ground Floor Plan

Ground Floor Plan

Roof Plan

Roof Plan Start Your Planning Consultation