The Maidenhead Luxury 4/5 Bed

A Comprehensive Reimagining of a Classic Detached Chalet

This project represents the ultimate "Ugly Duckling" transformation. We took a dated, detached 1960s chalet bungalow and completely redefined its architectural DNA, evolving it into a sprawling 4/5-bedroom luxury residence.

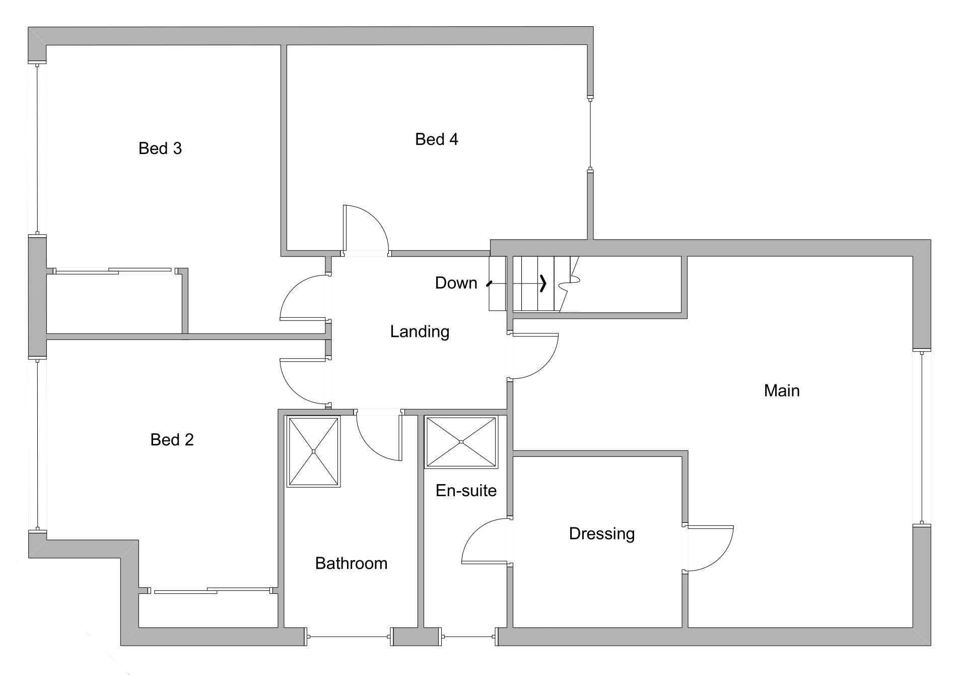
Social & Cinema Spaces

The structural heart of the build is a massive 6m x 8m lounge and dining wing, designed for grand-scale entertaining. This is complemented by a secondary den and cinema room, offering a private, tech-ready retreat from the main living area.

The transformation began at the kerbside; we cleared the original frontage to create an expansive, pristine gravel driveway that provides a sophisticated and practical entrance to the home.

The Master Sanctuary

The master suite was designed to be a true destination within the home. Measuring an incredible 7m x 6m, the suite includes a bespoke dressing room and offers a level of scale and luxury rarely achieved in residential renovations.

Front Elevation - Before

Front Elevation Existing

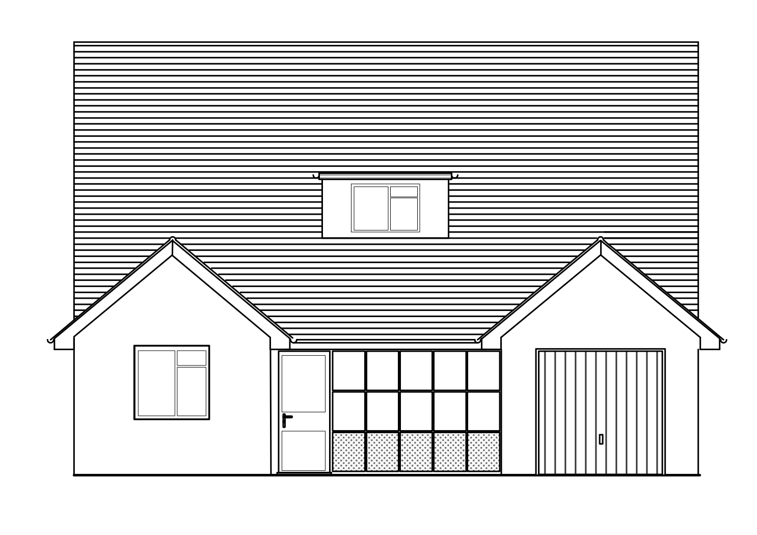
Front Elevation - After

Front Elevation Proposed

Rear Elevation - Before

Front Rear Proposed

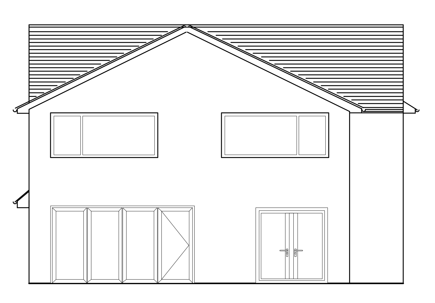
Rear Elevation - After

Front Rear Proposed

East Elevation - Before

North East Elevation Proposed

East Elevation - After

North East Elevation Proposed

West Elevation - Before

South West Elevation Proposed

West Elevation - After

South West Elevation Proposed

Ground Floor - Before

Front Elevation Existing

Ground Floor - After

Front Elevation Proposed

First Floor - Before

Front Elevation Existing

First Floor - After

Front Elevation Proposed

Roof - After

Front Elevation Proposed