The Marlow Semi-Detached Transformation

Elevating a 3-Bed Semi to a Modern 4-Bed Family home

Located in the heart of Marlow, this traditional three-bedroom semi-detached property underwent a comprehensive extension and internal reconfiguration. The goal was to evolve the layout into a spacious, functional four-bedroom home suited for the demands of modern family life.

The Ground Floor Evolution

The rear of the property has been transformed into a generous kitchen-diner, featuring expansive glazing that offers uninterrupted views over the landscaped garden. This social hub is supported by essential practical additions, including a new utility room and a discreet downstairs toilet.

To provide balance to the open-plan living, we integrated a private downstairs den—a versatile space perfect for a home office, playroom, or cozy media retreat.

Upper Floor & Master Suite

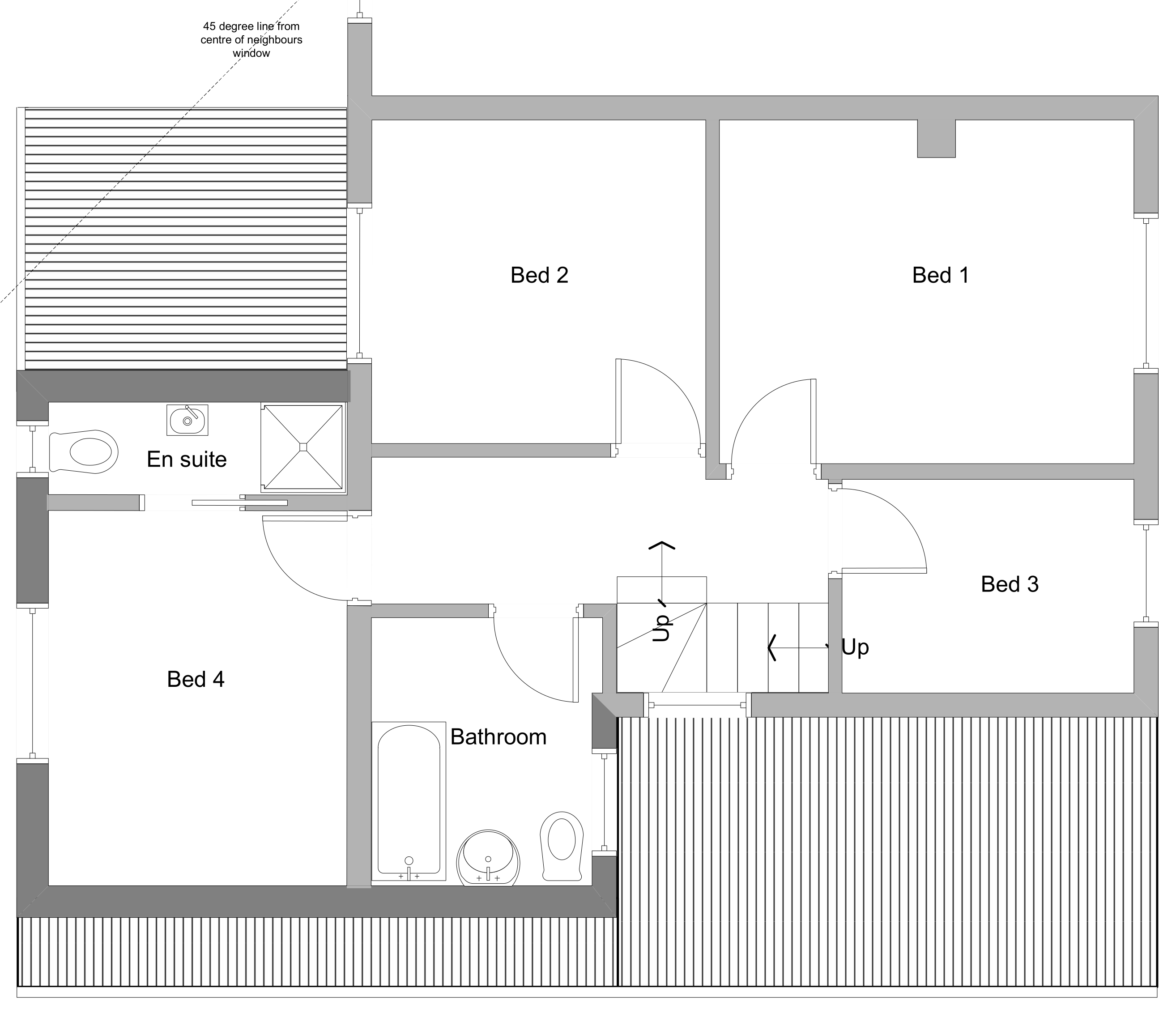
By extending the first floor, the property now boasts four well-proportioned bedrooms. The standout feature is the newly created Master Suite, which includes a contemporary ensuite shower room, providing a private sanctuary for the homeowners.

Every inch of the original 3-bed footprint was reimagined, ensuring that the transition from old to new is seamless, maximizing both natural light and floor area to create a home that feels significantly more expansive than its predecessor.

The 1950's Marlow Semi

Extending and adding a bedroom to a tired but solid Semi

Front Elevation - Before

Front Elevation Existing

Front Elevation - After

Front Elevation Proposed

Rear Elevation - Before

Rear Elevation Existing

Rear Elevation - After

Rear Elevation Proposed

North East Elevation - Before

North East Elevation Existing

North East Elevation - After

North East Elevation Proposed

South West Elevation - Before

South West Elevation Existing

South West Elevation - After

South West Elevation Proposed

Ground Floor - Before

Front Elevation Existing

Ground Floor - After

Front Elevation Proposed

First Floor - Before

Front Elevation Existing

First Floor - After

Front Elevation Proposed
Start Your Planning Consultation